mono e mini

Udine

1 camera
1 bagno
€ 105.000

Descrizione

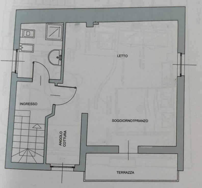
RECENTE MONOLOCALE ALL'ULTIMO PIANOAll'interno di una caratteristica corte di via Grazzano, completamente ristrutturata, proponiamo in vendita splendido monolocale travi a vista al terzo ed ultimo piano, libero su tutti i lati ed arretrato rispetto alla strada principale. Dal vano scale condominiale, tramite una scala privata, si giunge al disimpegno che serve sia il bagno/lavanderia finestrato con doccia che la spaziosa stanza open space con angolo cottura ben arredato e la terrazza che si affaccia sui tetti della città. L'immobile può essere oggetto di grande interesse anche per chi voglia avere una buona rendita con le affittanze brevi.

Caratteristiche

Riferimento annuncio:
Mono Grazzano
Superficie (Mq):
36 Mq.
Tipo immobile:
mono e mini
Stato immobile:
ristrutturato
Indirizzo:
Via grazzano,
Anno:
2011
Camere:
1
Riscaldamento:
autonomo
Bagni:
1
Terrazze:
1
Classe energetica:
Non definita
IPE:
Non definito

Agente

Massimiliano Riva
0432 21552